pregled nekretnine ID: 365449
prodaja

223m² 1.181.900€
Beograd, Vračar, Hram Svetog Save, Braničevska

Objavljen: 16.12.2025. / Izmenjen: 16.12.2025.


Tip: stan

Cena: 1181900.00 EUR

Površina: 223.00 m2

Grad: Beograd

Opština: Vračar

Deo: Hram Svetog Save

Ulica: Braničevska

Sprat: 3

Spratnost: 4

Soba: 5

Godina izgradnje: 2025

Prijavi problem  |  Pošalji na e-mail


Kontakt:

Moj Kvadrat doo

011/334 88 36

065/303 94 39

http://www.kvadratnekretnine.com

Opis:

  • Useljivo
  • Lift
  • Kanalizacija

Vračar, Hram Svetog Save - Braničevska

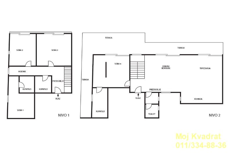
5.0, 223m2, terasa, 3/4, podno grejanje, toplotne pumpe, lift

U ponudi penthouse na trećoj etaži i povučenom spratu u luksuznoj novogradnji, svetao i dvostrano orijetisan. Može se koristiti kao dva stana sa posebnim ulazima.

Moderan i funkcionalan koncept stana po principu open space, sastoji se od dva nivoa.
Donji nivo: hodnik, master spavaća soba (sa kupatilom), dve spavaće sobe, kupatilo.
Gornji nivo: dnevni boravak sa trpezarijom i kuhinjom, toalet, spavaća soba sa kupatilom, terasa.

Sistem grejanja i hlađenja na toplotne pumpe i podno grejanje. Završen tehnički prijem.

Mogućnost kupovine garažnog mesta po ceni od 36.000€ + PDV.

U cenu stana je uračunat PDV.

Građevinska dozvola.

Odmah useljiv.

Agencijska provizija 2%

Agent Lazar Karadžić: 065/36-02-507 (licenca br. 3343)






0/1000