pregled nekretnine ID: 365515
prodaja
176m² 600.000€
Beograd, Barajevo, Brđanska
Objavljen: 18.12.2025. / Izmenjen:
18.12.2025.
Tip: poslovni prostor
Cena: 600000.00 EUR
Površina: 176.00 m2
Grad: Beograd
Opština: Barajevo
Ulica: Brđanska
Opis:
- Uknjiženo
- Telefon
- Parking
- Kanalizacija
- Interfon
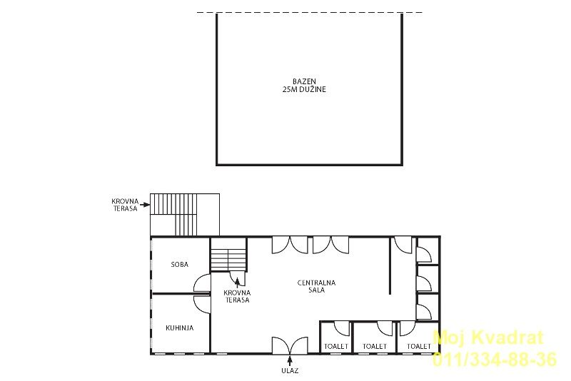
Barajevo - Brđanska, kompleks sa bazenima + plac
kompleks sa bazenima 176m2 + plac 85a, telefon, interfon, parking
Na mestu gde se ukrštaju vetrovi koji pozitivnu utiču na psihofizičko zdravlje ljudi, na tzv. "ruži vetrova", prodaje se sportski centar sa dva bazena. Ceo objekat je uknjižen na 176m2, ali poseduje i natkrivenu terasu što ukupno čini 352m2 korisnog prostora. Objekat se nalazi na placu površine 85a.
Sportski centar poseduje košarkaški teren i dva bazena: bazen za odrasle 20m x 8m x 1,45m i bazen za decu 3m x 8m x 0,9m. U objektu postoji izdvojena prostorija u kojoj se nalazi kotao za grejanje i filteri vode sa zeolitom.
Objekat ima sopstveni parking.
Pogodno je za razne namene: rođendane, rekreaciju, marketinške događaje...
Za svaku preporuku!
Uknjižen.
Agencijska provizija 2%